Tolles EFH mit sonnigem Grundstück in Meldorf

Objektbeschreibung
Wir freuen uns, Ihnen in einer großartigen Lage von Meldorf dieses massiv erstellte Einfamilienhaus aus dem Jahr 1964 anbieten zu dürfen. Betreten Sie das Haus über die Diele, die den Zugang zu vielen Bereichen des Erdgeschosses eröffnet. Von der Diele aus gelangen Sie in die gemütliche Küche mit klassischer Einbauküche; hier finden Sie problemlos Platz für einen Esstisch, sodass geselliges Beisammensein möglich ist. Die Küche und Diele sind zusätzlich mit Fußbodenerwärmung ausgestattet. Angrenzend an die Küche befindet sich der Anbau, durch den Sie ein kleines Duschbad, ein Kinderzimmer und den Hauswirtschaftsraum erreichen. Das Highlight dieses Bereichs ist der beheizte Wintergarten, der einen direkten Zugang zur südlich ausgerichteten Terrasse bietet – ideal für Sonnenstunden und Outdoor-Aktivitäten.
Vom Flur aus gelangen Sie in das großzügige Ess- und Wohnzimmer von rund 31 m², das Ihnen viel Spielraum für Ihre Einrichtungsideen bietet. Hier können Sie gemeinsam mit Ihrer Familie den Kamin genießen (aktueller Zustand: Renovierungsbedarf). Abgerundet wird das Erdgeschoss durch ein Wannenbad.
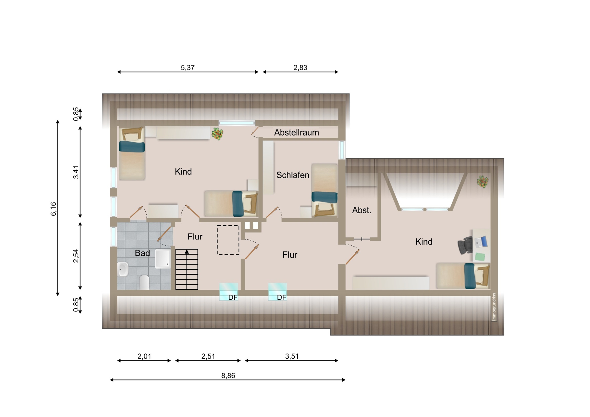
Über eine Holztreppe gelangen Sie ins Dachgeschoss, wo sich drei Schlafräume befinden. Alle drei Zimmer verfügen über Gauben und damit viel Tageslicht. Zusätzlich finden Sie im Dachgeschoss ein charmantes Duschbad aus den Sechzigerjahren. Vom Flur aus gelangen Sie über eine Bodeneinschubtreppe zum Spitzboden, der weiteren Lagerraum bietet.
Der Keller ist über eine Steintreppe erreichbar. Dort erwartet Sie zunächst ein Heizungsraum mit einer Ölheizung aus dem Jahr 2007, der ausreichend Platz als Lagerraum für selten genutzte Gegenstände bietet. Der Anbau ist ebenfalls unterkellert und eignet sich hervorragend als Werkstatt; über eine Außentreppe gelangen Sie zum Vorgarten. Ergänzt wird der Keller durch einen Raum mit Öltanks ( Fassungsvermögen ca. 4500 Liter ).
Der Garten überzeugt durch seine pflegeleichte Gestaltung, ist sonnenseitig ausgerichtet und bietet Privatsphäre.
Lage
Die Gegend rund um ein freistehendes Einfamilienhaus befindet sich in der reizvollen Kleinstadt Meldorf, eingebettet in die malerische Landschaft Dithmarschens. Diese Lage verbindet die ruhige, idyllische Atmosphäre des Landlebens mit der Nähe zu städtischen Vorzügen. Meldorf besticht durch historische Bausubstanz und bietet zahlreiche kulturelle Erlebnisse, die besonders Geschichts- und Kulturliebhaber ansprechen.
Die Umgebung zeichnet sich durch eine hervorragende Infrastruktur aus, die sich hervorragend für Familien eignet. Schulen, Kindergärten und Spielplätze liegen praktisch vor der Haustür, was Meldorf zu einem idealen Standort für junge Familien macht. Zudem profitieren Familien von einer guten Anbindung an Sportvereine und vielfältige Freizeitmöglichkeiten für eine aktive Lebensgestaltung.
Auch Berufspendler finden hier Vorteile: Die Stadt verfügt über gute Verkehrsanbindungen. Die Nähe zur Nordseeküste sorgt außerdem für einen angenehmen Ausgleich zum Arbeitsalltag und lädt zu erholsamen Ausflügen ein. Für Senioren ist die Lage ebenso attraktiv: Medizinische Versorgung und Einkaufsmöglichkeiten des täglichen Bedarfs sind bequem erreichbar.
Insgesamt bietet Meldorf eine harmonische Mischung aus Ruhe, kulturellem Reichtum und praktischen Annehmlichkeiten, die verschiedene Käufergruppen anspricht. Ob Naturverbundenheit, familienfreundliches Umfeld oder das Flair der historischen Atmosphäre – hier findet jeder das passende Ambiente.
Ausstattung
Massives Haus
3 Bäder
Kamin
Rollläden
Wintergarten
Ölheizung aus 2007
Garage
verkleidetes Carport
Teilkeller
Fußbodenerwärmung Küche und Diele
Weitere Informationen
Widerrufsrecht
Sie haben das Recht, binnen vierzehn Tagen ohne Angabe von Gründen diesen Vertrag zu widerrufen.
Die Widerrufsfrist beträgt vierzehn Tage ab dem Tag des Vertragsabschlusses.
Um Ihr Widerrufsrecht auszuüben, müssen Sie uns, der Immobilienvertrieb Nord GmbH, Theodor-Storm-Str. 7, 22941 Bargteheide, Telefon: 04532 505 390, E-Mail: info@iv-nord.de mittels einer eindeutigen Erklärung (z.B. ein mit der Post versandter Brief, Telefax oder E-Mail) über Ihren Entschluss, diesen Vertrag zu widerrufen, informieren.
Zur Wahrung der Widerrufsfrist reicht es aus, dass Sie die Mitteilung über die Ausübung des Widerrufsrechts vor Ablauf der Widerrufsfrist absenden.
Alle Angaben sind ohne Gewähr und basieren ausschließlich auf Informationen, die uns vom Verkäufer/ Auftraggeber zur Verfügung gestellt wurden. Wir übernehmen keine Gewähr für die Vollständigkeit, Richtigkeit und Aktualität dieser Angaben. Irrtum und Zwischenverkauf vorbehalten
Anfragen per E-Mail werden nur nach Nennung Ihrer vollständigen Adresse und Telefonnummer von uns bearbeitet. Wir bitten um Ihr Verständnis. Die von Ihnen angegebenen Daten werden über unseren Providerserver per Email an uns weitergeleitet und nach Beantwortung gelöscht, sofern keine gesetzliche Aufbewahrungspflicht besteht. Eine Nutzung zu einem anderen Zweck oder eine Datenweitergabe an Dritte findet nicht statt.
Preisdetails
Energieausweis
Bildgalerie






































Haben wir Ihr Interesse geweckt?
Ich habe das Impressum und die Datenschutzerklärung gelesen und akzeptiert. Ich erkläre mich damit einverstanden, dass meine personenbezogenen Daten bei der Firma Immobilienvertrieb Nord GmbH gespeichert, verarbeitet und genutzt werden. Meine Daten werden von dem genannten Unternehmen benutzt, um mit mir in Kontakt zu treten und mir dadurch die von mir erbetenen Informationen zukommen zu lassen.
