Skip to content

Sanieren oder Neubau, Sie haben die Wahl! Vermietetes Einfamilienhaus in Lasbek mit 1ha Land, Pferdehaltung möglich

Sanieren oder Neubau, Sie haben die Wahl! Vermietetes Einfamilienhaus in Lasbek mit 1ha Land, Pferdehaltung möglich
Grundstück 10.000,00 m² Wohnfläche 119,18 m² Parkplatz 2 Erbaut in 1955 Zimmer 4 Befeuerung Öl Terrassen 1 Immobilie ist verfügbar ab Nach Vereinbarung

Objektbeschreibung

Dieses vermietete Einfamilienhaus aus dem Jahr 1955 bietet eine ideale Möglichkeit für alle, die eine Immobilie nach eigenen Vorstellungen gestalten oder ein Grundstück mit Entwicklungspotenzial nutzen möchten.
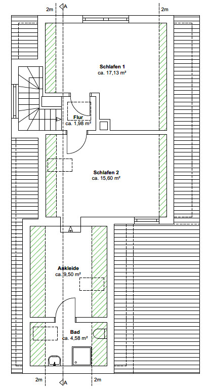
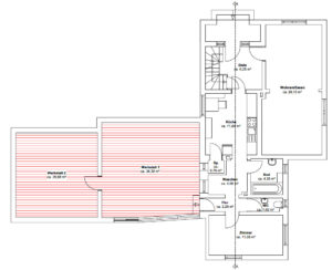
Auf zwei Etagen stehen rund 100 m² Wohnfläche mit 4 Zimmern zur Verfügung. Eine teilweise Unterkellerung bietet zusätzlichen Stauraum.

Das zum Verkauf stehende Grundstück umfasst ca. 10.000 m² (Hauskoppel mit etwa 8.100 m², Grundstück / Baufenster 1900 m²) und bietet vielfältige Nutzungsmöglichkeiten – ideal für Tierhaltung, Gartenprojekte oder Freizeitnutzung.

Für das Grundstück lag bereits eine positiv beschiedene Bauvoranfrage für zwei Doppelhäuser vor, was es auch für einen Abriss und Neubau interessant macht. Ein Abrissangebot ist vorhanden und kann bei Interesse eingesehen werden.

Das Objekt ist derzeit vermietet und erzielt eine Nettojahreskaltmiete von 9.216 €. Die Verfügbarkeit erfolgt nach Vereinbarung, sodass Sie Ihre Planungen flexibel gestalten können.

Nutzen Sie diese Gelegenheit, um eine Immobilie mit solidem Fundament und großem Entwicklungsspielraum zu erwerben. Für weitere Informationen oder einen Besichtigungstermin stehen wir Ihnen gerne zur Verfügung.

Hinweis:
Zum Schutz der Privatsphäre der Mietenden werden keine Innenaufnahmen veröffentlicht.

Lage

Lasbek-Dorf ist ein idyllischer Ortsteil der Gemeinde Lasbek und besticht durch seine ruhige, ländliche Atmosphäre. Umgeben von weitläufigen Feldern und Wiesen bietet der Ort ideale Bedingungen für Naturliebhaber und alle, die das Leben abseits des städtischen Trubels genießen möchten.

Trotz der beschaulichen Lage ist die Anbindung an die umliegenden Städte hervorragend. Die nahegelegene Autobahn ermöglicht eine schnelle Erreichbarkeit von Hamburg und Lübeck, während Einkaufsmöglichkeiten, Schulen und weitere wichtige Einrichtungen in wenigen Minuten erreichbar sind. Zudem lädt die reizvolle Umgebung zu Spaziergängen, Radtouren und anderen Outdoor-Aktivitäten ein.

Lasbek-Dorf vereint ländliche Idylle mit einer guten Infrastruktur und bietet eine hohe Lebensqualität für alle, die die Natur schätzen und dennoch gut angebunden sein möchten.

Weitere Informationen

Widerrufsrecht

Sie haben das Recht, binnen vierzehn Tagen ohne Angabe von Gründen diesen Vertrag zu widerrufen.
Die Widerrufsfrist beträgt vierzehn Tage ab dem Tag des Vertragsabschlusses.
Um Ihr Widerrufsrecht auszuüben, müssen Sie uns, der Immobilienvertrieb Nord GmbH, Theodor-Storm-Straße 7, 22941 Bargteheide, Telefon: 04532 505 390, E-Mail: info@iv-nord.de mittels einer eindeutigen Erklärung (z.B. ein mit der Post versandter Brief, Telefax oder E-Mail) über Ihren Entschluss, diesen Vertrag zu widerrufen, informieren.
Zur Wahrung der Widerrufsfrist reicht es aus, dass Sie die Mitteilung über die Ausübung des Widerrufsrechts vor Ablauf der Widerrufsfrist absenden.

Alle Angaben sind ohne Gewähr und basieren ausschließlich auf Informationen, die uns vom Verkäufer/ Auftraggeber zur Verfügung gestellt wurden. Wir übernehmen keine Gewähr für die Vollständigkeit, Richtigkeit und Aktualität dieser Angaben. Irrtum und Zwischenverkauf vorbehalten

Anfragen per E-Mail werden nur nach Nennung Ihrer vollständigen Adresse und Telefonnummer von uns bearbeitet. Wir bitten um Ihr Verständnis. Die von Ihnen angegebenen Daten werden über unseren Providerserver per Email an uns weitergeleitet und nach Beantwortung gelöscht, sofern keine gesetzliche Aufbewahrungspflicht besteht. Eine Nutzung zu einem anderen Zweck oder eine Datenweitergabe an Dritte findet nicht statt.

Preisdetails

Courtage 3,25% Anzahl Außenstellplätze 2

Energieausweis

Energieausweis-Art Bedarf Engergieausweis gültig bis 23.06.2035 Endenergiebedarf 562,64 kWh/(m²*a) Primärenergieträger OEL Energieeffizienzklasse H Jahr der energetischen Sanierung 1955 Energieausweis-Jahrgang ab Mai 2014 Energieausweis-Gebäudeart Wohngebäude

Bildgalerie

Haben wir Ihr Interesse geweckt?

Ich habe das Impressum und die Datenschutzerklärung gelesen und akzeptiert. Ich erkläre mich damit einverstanden, dass meine personenbezogenen Daten bei der Firma Immobilienvertrieb Nord GmbH gespeichert, verarbeitet und genutzt werden. Meine Daten werden von dem genannten Unternehmen benutzt, um mit mir in Kontakt zu treten und mir dadurch die von mir erbetenen Informationen zukommen zu lassen.

Die Markierung zeigt nicht die exakte Position.
Nicole Göbel
An den Anfang scrollen