ZFH in Bad Schwartau – großes Hanggrundstück, sanierungsbedürftiger Altbau mit viel Potenzial

Objektbeschreibung
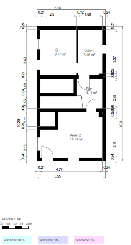
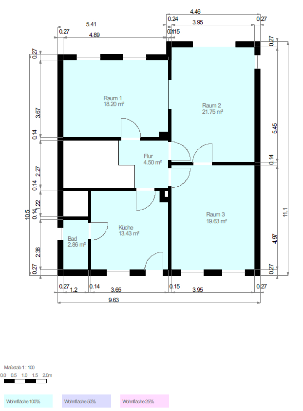
Dieses Zweifamilienhaus wurde nach unseren Informationen circa Anfang des 20. Jahrhunderts errichtet und bietet eine seltene Gelegenheit für alle, die ein Sanierungsobjekt mit Charakter suchen. Die Immobilie liegt in Bad Schwartau auf einem großzügigen Hanggrundstück mit 932 m² und verfügt über ca. 165 m² Wohnfläche. Die sechs Zimmer verteilen sich auf Erd- und Obergeschoss und bieten viele Möglichkeiten für individuelle Grundrisse und Nutzungsideen.
Die großen Fenster sorgen für eine gute Belichtung. Die Terrasse bietet schöne Blickachsen ins Grüne und auf das Hanggrundstück, während der Balkon zur Straßenseite ausgerichtet ist. Die ruhige Wohnlage in Verbindung mit der Grundstücksgröße macht das Objekt besonders interessant für Käufer, die Wert auf Platz und Gestaltungsspielraum legen.
Das Haus ist deutlich in die Jahre gekommen und benötigt eine umfassende Sanierung – sowohl optisch als auch baulich. Wer Erfahrung mit Altbauten hat oder ein Projekt sucht, bei dem man vieles selbst bestimmen kann, findet hier eine passende Grundlage. Die historische Bausubstanz bietet Charme, verlangt aber auch eine sorgfältige Planung. Hinweise auf Denkmalschutz liegen nicht vor; wir haben hierzu die Denkmaldatenbank des Landes Schleswig-Holstein eingesehen. Dadurch besteht mehr Flexibilität bei Modernisierung und Ausbau.
Ob als Zweifamilienhaus oder großzügiges Einfamilienprojekt – die Immobilie lässt viele Optionen offen. Das Hanggrundstück bietet zusätzlich Potenzial für Gartenliebhaber oder kreative Außenanlagen.
Die Verfügbarkeit erfolgt nach Absprache.
Lage
Bad Schwartau liegt im Kreis Ostholstein in Schleswig-Holstein und grenzt direkt an die Hansestadt Lübeck. Die Stadt bietet eine ruhige, grüne Wohnlage mit sehr guter Verkehrsanbindung über die A1 und den Regionalbahnhof Richtung Lübeck, Hamburg und die Ostseeküste. Einkaufsmöglichkeiten, Schulen, Ärzte und Freizeitangebote sind vielfältig vorhanden. Durch die Nähe zur Ostsee und den Charakter als Jod-Sole-Heilbad gilt Bad Schwartau als attraktiver Wohnort mit hoher Lebensqualität und guter Infrastruktur.
Weitere Informationen
Widerrufsrecht
Sie haben das Recht, binnen vierzehn Tagen ohne Angabe von Gründen diesen Vertrag zu widerrufen.
Die Widerrufsfrist beträgt vierzehn Tage ab dem Tag des Vertragsabschlusses.
Um Ihr Widerrufsrecht auszuüben, müssen Sie uns, der Immobilienvertrieb Nord GmbH, Rathausstr. 1, 22941 Bargteheide, Telefon: 04532 505 390, E-Mail: info@iv-nord.de mittels einer eindeutigen Erklärung (z.B. ein mit der Post versandter Brief, Telefax oder E-Mail) über Ihren Entschluss, diesen Vertrag zu widerrufen, informieren.
Zur Wahrung der Widerrufsfrist reicht es aus, dass Sie die Mitteilung über die Ausübung des Widerrufsrechts vor Ablauf der Widerrufsfrist absenden.
Alle Angaben sind ohne Gewähr und basieren ausschließlich auf Informationen, die uns vom Verkäufer/ Auftraggeber zur Verfügung gestellt wurden. Wir übernehmen keine Gewähr für die Vollständigkeit, Richtigkeit und Aktualität dieser Angaben. Irrtum und Zwischenverkauf vorbehalten
Anfragen per E-Mail werden nur nach Nennung Ihrer vollständigen Adresse und Telefonnummer von uns bearbeitet. Wir bitten um Ihr Verständnis. Die von Ihnen angegebenen Daten werden über unseren Providerserver per Email an uns weitergeleitet und nach Beantwortung gelöscht, sofern keine gesetzliche Aufbewahrungspflicht besteht. Eine Nutzung zu einem anderen Zweck oder eine Datenweitergabe an Dritte findet nicht statt.
Preisdetails
Energieausweis
Bildgalerie




























Haben wir Ihr Interesse geweckt?
Ich habe das Impressum und die Datenschutzerklärung gelesen und akzeptiert. Ich erkläre mich damit einverstanden, dass meine personenbezogenen Daten bei der Firma Immobilienvertrieb Nord GmbH gespeichert, verarbeitet und genutzt werden. Meine Daten werden von dem genannten Unternehmen benutzt, um mit mir in Kontakt zu treten und mir dadurch die von mir erbetenen Informationen zukommen zu lassen.
